Shape Of Charm Güzellik Merkezi Projesi
Evgenia IŞIK için lüks ve modern çizgiler ile tasarladığımız güzellik merkezi projemiz 2022 yılında inşaatı ...
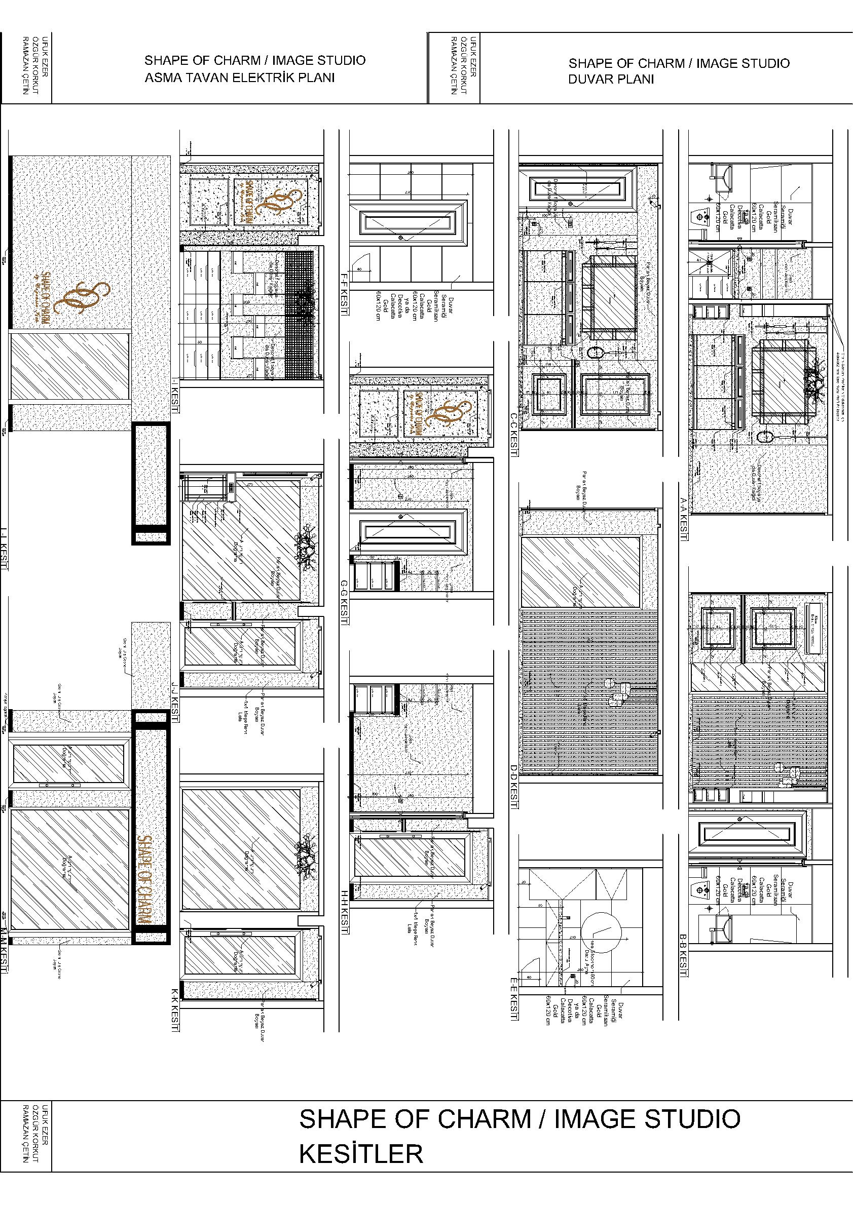
DETAYLAR
Proje Detayları Shape Of Charm Güzellik Merkezi Projesi PROJESİNİN BİLGİLERİ
- TARİH : 2022
- PROJE : Shape Of Charm Güzellik Merkezi Projesi
- PROJE SAHİBİ : Evgenia IŞIK
- KONUM : Antalya/MURATPAŞA
0
1
Açıklama
Evgenia IŞIK için lüks ve modern çizgiler ile tasarladığımız güzellik merkezi projemiz 2022 yılında inşaatı tamamlanarak işverenin kullanımına sunulmuştur.

